A major Disney infrastructure project just took a major step forward!
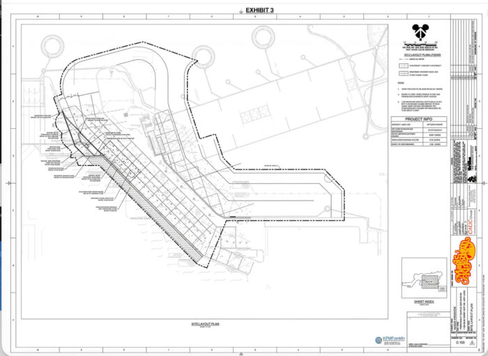
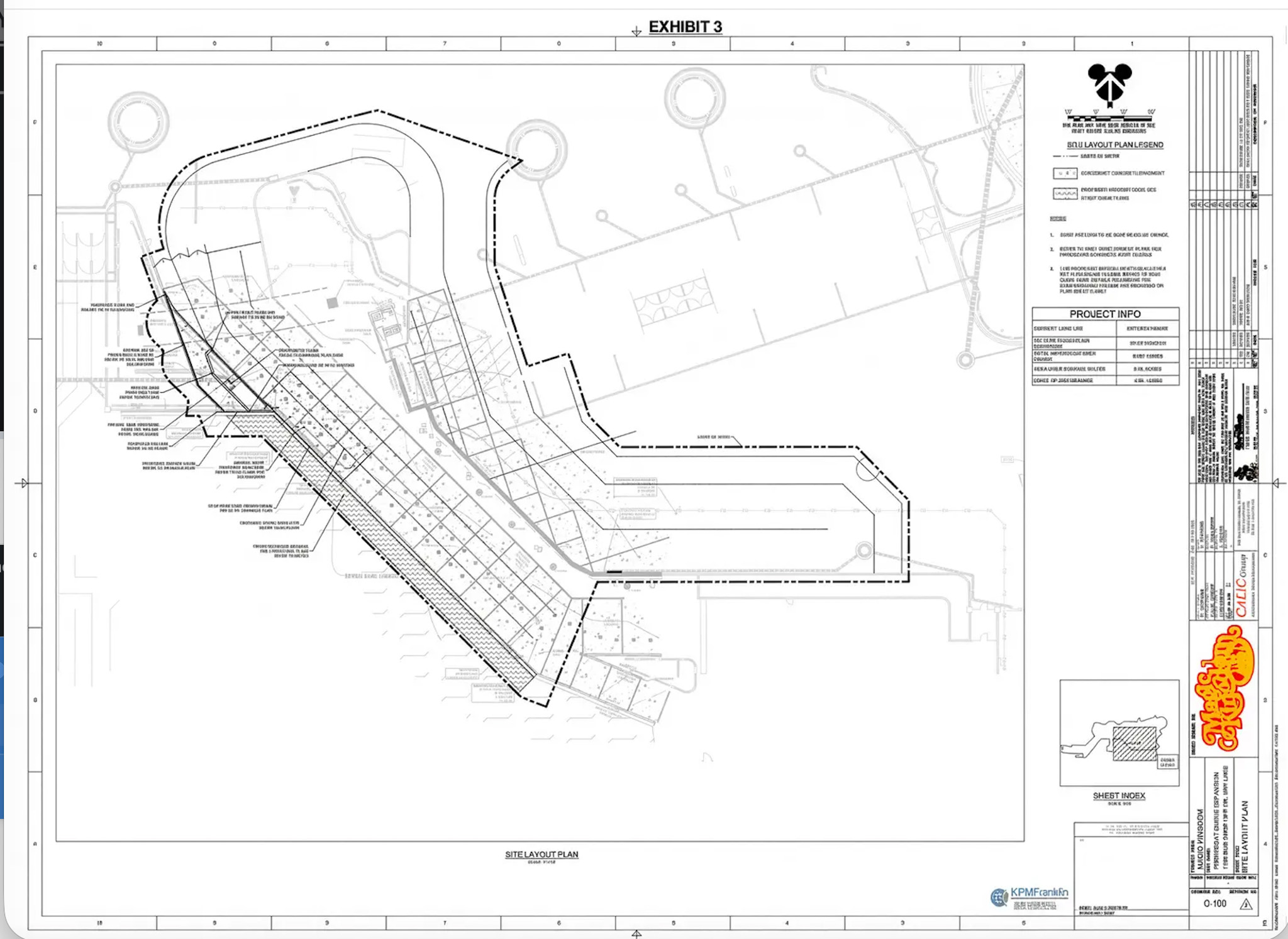
Several months ago, Disney filed an application for the expansion of the Magic Kingdom’s Ferry Dock, including dock expansion, hardscape improvements, and a floodplain compensation area at the ferry boarding location.
In late March 2026, the South Florida Water Management District approved Disney’s permit application for work. A timeline for construction on the project was not revealed.
The expansion will be the latest in a series of updates to the ferry infrastructure that Disney has made in the last decade+. In 2014, Disney added a second dock to both the Magic Kingdom and Transportation and Ticket Center to double the boats and, in turn, capacity, while 2021 brought a second level for both docks, allowing guests to board and disembark on both the top and bottom levels of the boat.
Ferry service to the Magic Kingdom is one of Disney World’s original transportation methods, having been in service since 1971. It remains popular to this day, with the boats transporting up to 600 passengers to and from Magic Kingdom per trip.
The South Florida Water Management District just gave Disney the green light to move forward with a new Magic Kingdom Ferry Dock expansion project. Stay tuned to DFB for more on this project.
4 Hacks That Make Booking Magic Kingdom Dining Reservations 10x Easier
Join the DFB Newsletter to get all the breaking news right in your inbox! Click here to Subscribe!
WE KNOW DISNEY.
YOU CAN, TOO.
Oh boy, planning a Disney trip can be quite the adventure, and we totally get it! But fear not, dear friends, we compiled EVERYTHING you need (and the things to avoid!) to plan the ULTIMATE Disney vacation.
Whether you're a rookie or a seasoned pro, our insider tips and tricks will have you exploring the parks like never before. So come along with us, and get planning your most magical vacation ever!
What’s your go-to transportation route to get to the Magic Kingdom? Let us know in the comments below.





Our handy (and portable!) ebook guides make sure you get the best deals and can plan a vacation of a lifetime.

TRENDING NOW
If you're heading to Early Entry at Magic Kingdom in Disney World, be prepared for...
Disney fans are still split on this upcoming ride transformation.
Here's why you should run to ALDI next week.
Even MORE changes are coming to this EPCOT ride.
We tried the most unique burger we've seen in Disney Springs!
We're scratching our heads over this Disney World hotel room trend.
A new update has been shared about Disney Abu Dhabi.
Check out the 20 best Disney deals under $20 during Amazon's Big Spring Sale!
You need to see the new Regal View Restaurant & Lounge in Disneyland Paris.
A new park map has debuted at Disney's Animal Kingdom following the first closures of...
A popular and unique experience has returned to EPCOT's China Pavilion!
A permit was filed for a NEW attraction at Epic Universe. Get all the details...
Disneyland just released a new look at the snacks coming to Disney Channel Nite!
Disney just released new ticket information for D23 2026!
Please don't do THIS on the Haunted Mansion.
United Airlines just delivered a dream come true.
Forget to bring something important on your Disney World vacation? Here's a look at all...
The Southern Burger at Chef Art Smith's Homecomin' has completely blown our minds!
We're heading to The Cake Bake Shop Bakery to try THREE new treats! Come along...
Universal Orlando is STILL expanding.