Disney World Parks and Resorts just received approval for its Environmental Resource Permit, a major step forward for its affordable housing project in Central Florida. The South Florida Water Management District (SFWMD) has approved the permit application submitted by Walt Disney World Parks and Resorts for its Hartzog Road Attainable Housing Community. The permit application for an Individual Environmental Resource Permit was initially submitted on September 8th, 2025, and the permit was approved and issued on January 23rd, 2026.
The Hartzog Road Attainable Housing Community is a new community on nearly 80 acres in Horizon West. Disney is working with The Michaels Organization to develop 1,369 units of mixed-income housing in Central Florida. More than 1,000 of those units will be reserved for affordable housing. The development will be available for qualifying applicants in Central Florida, including Disney Cast Members.
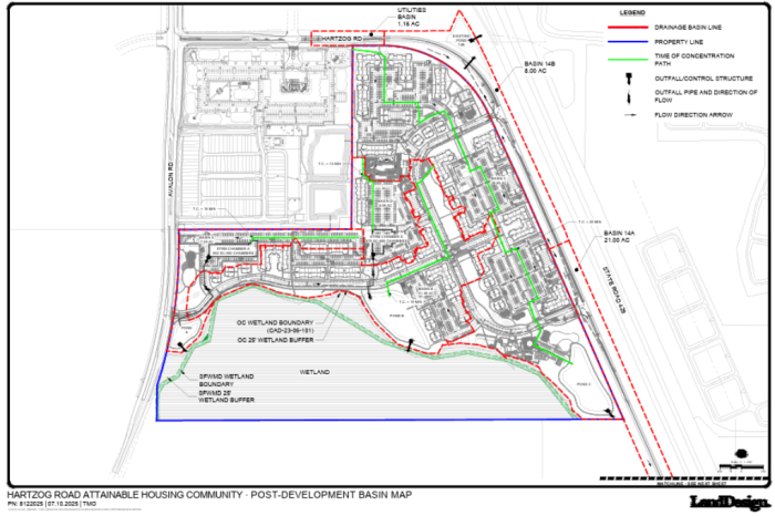
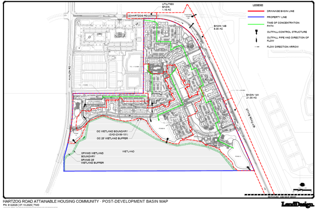
The Individual Environmental Resource Permit covers stormwater and drainage plans for the project. According to the South Florida Water Management District, an Environmental Resource Permit is required for “development or construction activities to prevent flooding, protect the water quality of Florida’s lakes and streams from stormwater pollution, and protect wetlands and other surface waters.” An Environmental Resource Permit is needed for dredging and filling in wetlands or surface waters, constructing flood protection facilities, providing stormwater containment and treatment, site grading, building dams or reservoirs, or other activities affecting state waters.
While the project still has many milestones to reach before it can even consider welcoming residents, the Environmental Resource Permit approval is still a great step forward. The housing community will be located in Horizon West, off of Hartzog Road, Avalon Road, and SR 429. During development, Disney is focused on intentional design, green landscapes, and thoughtful community planning. There will be a focus on storytelling and the arts, with murals and unique elevations throughout the community.
We are always on the lookout for the latest Disney news, so be sure to stay tuned to DFB for more!
REVIEW: We Have PROOF That You Should Never Skip This Disney World Lounge
Join the DFB Newsletter to get all the breaking news right in your inbox! Click here to Subscribe!
WE KNOW DISNEY.
YOU CAN, TOO.
Oh boy, planning a Disney trip can be quite the adventure, and we totally get it! But fear not, dear friends, we compiled EVERYTHING you need (and the things to avoid!) to plan the ULTIMATE Disney vacation.
Whether you're a rookie or a seasoned pro, our insider tips and tricks will have you exploring the parks like never before. So come along with us, and get planning your most magical vacation ever!
What do you think about this housing project? Let us know your thoughts in the comments!




Our handy (and portable!) ebook guides make sure you get the best deals and can plan a vacation of a lifetime.

TRENDING NOW
Here's what's coming to ALDI next week.
Disney love hiding things in plain sight in their concept art, so let's dive into...
We've got more Disney World hotel pool closures to warn you about.
Check out all the details for EPCOT's Garden Graze for 2026.
There are Disney World curfews that even seasoned Disney guests overlook, and trust us, finding...
Disneyland just changed their park hopping rules!
We can't get enough of these Loungefly bags!
Universal just dropped ticket prices for Epic Universe in 2026.
We just tried two pretzels at this Disneyland spot!
With thousands of guests packed into Disney World on any given day, the crowds are...
Before booking these three Disney World hotels for your 2026 vacation, be sure to know...
A new Disney World permit amendment reveals the Big Thunder Mountain Railroad might be taking...
A new entertainment space is coming to Disney Springs this year!
Check out what menu items The Cheesecake Factory has cut from the menu and what's...
If you’ve got a Disney Adult in your life (or, let’s be honest, you are...
Got nearly $80K burning a hole in your pocket? We have a solution.
Before you set foot in Universal Epic Universe, there are some RULES you need to...
The new limited-edition Mickey Mouse plush for D23 members is the BRIGHTEST yet! See it...
Okay, it's official. We're in LOVE with the 2026 Disney California Adventure Food & Wine...
Okay, let's talk about THAT issue in Epic Universe's The Wizarding World of Harry Potter...