While we adore the Walt Disney World Monorail, don’t get us wrong, sometimes it’s not the fastest way to get to Magic Kingdom.
The lines for the Express Monorail can easily get backed up during busy periods, and sometimes you don’t want to have to take the Resort Monorail to make stops before getting to your destination. If that’s the case, your next option is the Ferryboat, which we’re also a big fan of! While the Ferryboat currently holds TONS of people, we’ve still experienced some pretty intense backups when loading for the boat from Magic Kingdom to head back to the TTC (especially when the Monorail is down). Soon, that may no longer be as big of an issue thanks to this new expansion project!
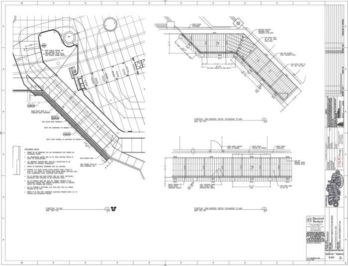
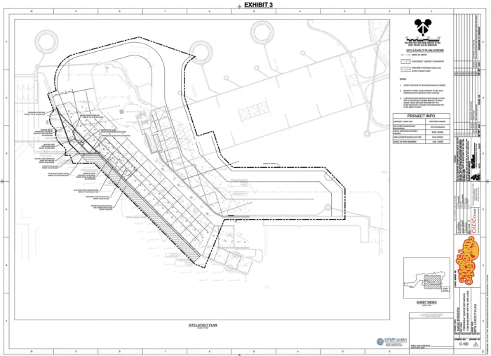
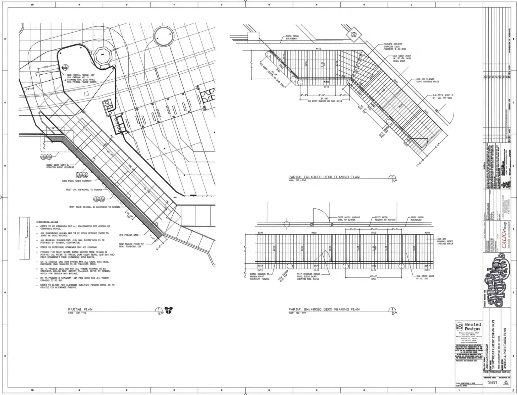
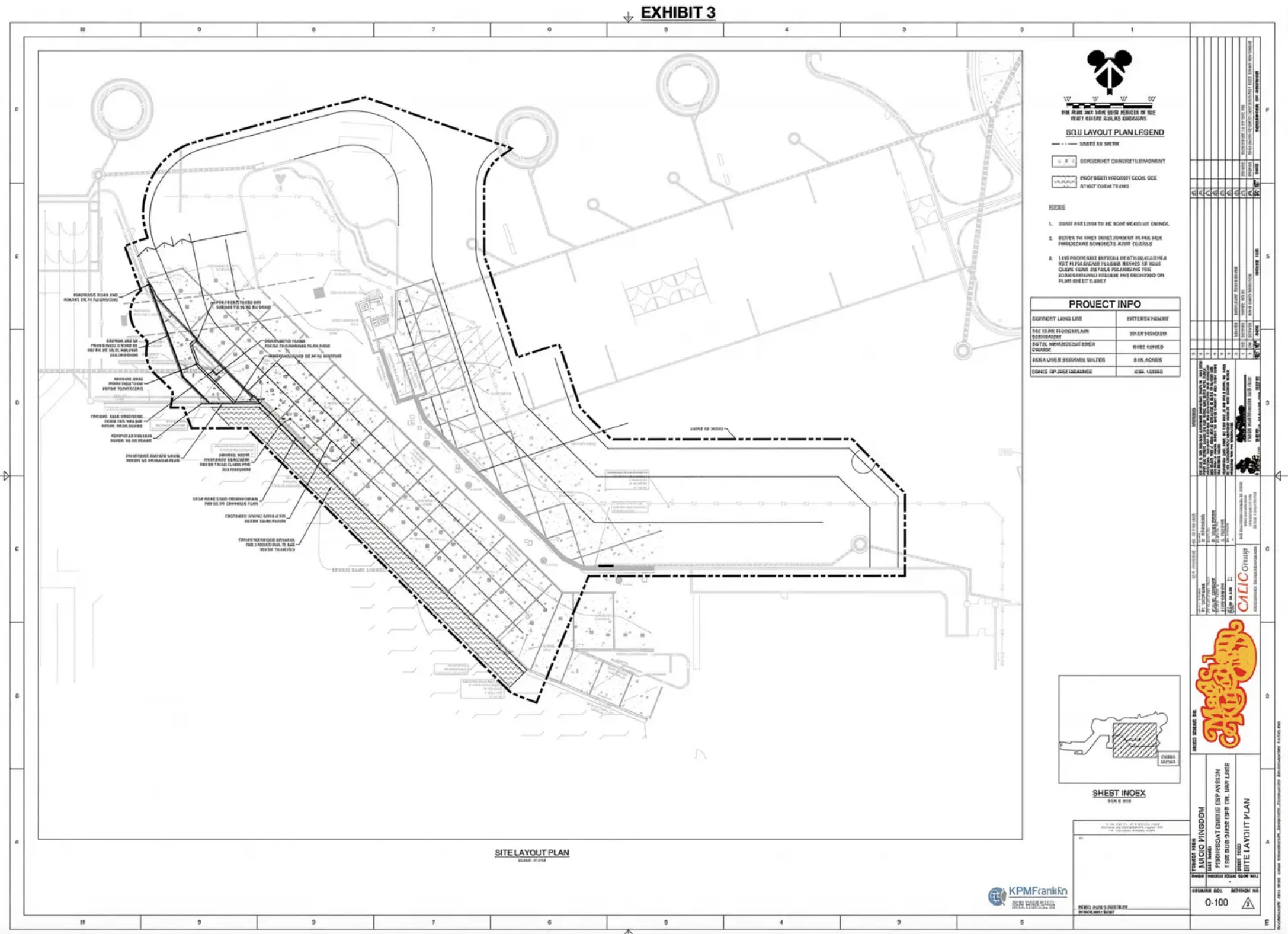
Disney has recently filed an application with the South Florida Water Management District to expand the queue for the Magic Kingdom Ferryboat. Currently, these plans only focus on expanding the station outside Magic Kingdom, not the station at the TTC.
Based on the plans, it looks like it will better organize the entrance point for guests to avoid major crowding, and perhaps extend it horizontally as well to allow for more space.
This is far from the only Ferryboat construction project we’ve seen in the past decade or so. The second Ferryboat dock was added to the Magic Kingdom and TTC docks back in 2024, and then upper deck bridges were added to allow for quicker departure for guests on the top deck back in 2021.
We have to admit that we’re really curious to see if this expansion will eventually also be added to the TTC of the dock, but we wouldn’t be shocked if the answer is no. The Magic Kingdom side is the one that gets the most backed up, especially at the end of the night when there are long lines for both the Ferryboat AND Monorail, and it can sometimes be confusing as to which one people are in line for. Hopefully, this adjustment will make that clearer.
However, if the Ferryboat needs to close for this construction to take place, it WILL make traffic heading to and from Magic Kingdom on the Monorail worse, unless Disney chooses to run buses to and from the TTC and park as well.
More Magic Kingdom News!
- This Magic Kingdom Construction Project Just Took a BIG Step Forward
- Disney World Secretly Announces the Return of Its Christmas Parade
- The New Procedures You Have to Follow in Magic Kingdom
- 16 Disney World Secrets Even Locals Don’t Know
- I Have Claustrophobia and I Avoid These 6 Disney World Pinch Points at All Costs
We’ll be sure to keep you updated on all the latest news we hear, so stay tuned to DFB!
I’ve Tried Every Transportation Hack in Disney World and I’m Sharing 8 of My Favorites
Join the DFB Newsletter to get all the breaking news right in your inbox! Click here to Subscribe!
WE KNOW DISNEY.
YOU CAN, TOO.
Oh boy, planning a Disney trip can be quite the adventure, and we totally get it! But fear not, dear friends, we compiled EVERYTHING you need (and the things to avoid!) to plan the ULTIMATE Disney vacation.
Whether you're a rookie or a seasoned pro, our insider tips and tricks will have you exploring the parks like never before. So come along with us, and get planning your most magical vacation ever!
How do you feel about this potential expansion? Tell us in the comments!






Our handy (and portable!) ebook guides make sure you get the best deals and can plan a vacation of a lifetime.

TRENDING NOW
A new update has been shared about Disney Abu Dhabi.
If you're heading to Early Entry at Magic Kingdom in Disney World, be prepared for...
Check out the 20 best Disney deals under $20 during Amazon's Big Spring Sale!
Here's why you should run to ALDI next week.
A new Disney+ perk just dropped for subscribers!
We're scratching our heads over this Disney World hotel room trend.
Amazon's Big Spring Sale is here!
Even MORE changes are coming to this EPCOT ride.
If you're looking for the BEST breakfasts in Walt Disney World, look no further! We've...
No reopening date has been announced for this Disneyland pool closure.
Zebra Domes from Disney's Animal Kingdom Lodge are the next in our series of Disney...
Disney World menus changed again this week.
These American Disney rides will be closed at various points throughout the year.
These airplane upgrades are worth every penny!
These 5 vintage-inspired Disney souvenirs on sale at BoxLunch are cute, nostalgic, and just unhinged...
A bunch of seriously fun Disney finds just went on sale over at BoxLunch, and...
Disneyland just announced two new refurbishments.
It's official, this Disney Springs store is closing in just FIVE days!
NINE new pins have just landed on the Disney Store website, but act fast, because...
Disney shares a recipe from Sanaa that you can make right at home!